Haus G 1
Bungalow im Grünen
Ein kompakter Bungalow mit Walmdach für ein kleines Grundstück schafft harmonisches Wohnen in Verbindung mit der Natur. Ein Haus das Ruhe ausstrahlt und bewusst auf visuelle Lautstärke verzichtet.
Großzügige Fensteröffnungen und eine offene Bauweise schaffen fließende Übergänge zwischen Innen und Außen. Tageslicht, Ausblicke und Raum wirken als Einheit und verleihen dem Haus eine ruhige, selbstverständliche Offenheit.


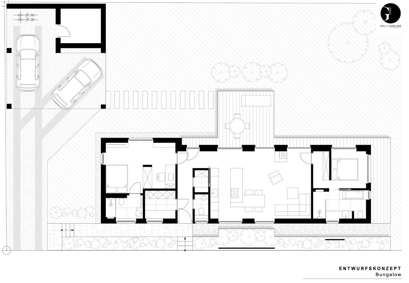
Der Grundriss ist auf das Wesentliche reduziert. Zwei abgeschlossene, voneinander unabhängige Rückzugsbereiche mit jeweils eigenem Bad ermöglichen Privatsphäre und Flexibilität, während der gemeinschaftliche Charakter des kleinen Hauses erhalten bleibt. Im Mittelpunkt liegt der offene Wohnbereich mit Küche, Esstisch und Kamin. Als ruhiger, kommunikativer Kern verbindet er alle Bereiche des Hauses und lädt zu Begegnung, Entspannung und gemeinsamer Zeit ein.

Die Gestaltung ist von einer japanisch inspirierten Zurückhaltung geprägt. Der weit auskragende Dachrand schützt die Fassade vor Regen, Sonne und Wind und schafft gleichzeitig einen sanfte Pufferzone, die weder ganz innen noch ganz außen ist. Er filtert Licht und Schatten und verstärkt das Gefühl von Ruhe, Ordnung und Klarheit. In Verbindung mit der dunklen Fassade entsteht eine ruhige, erdende Präsenz – das Haus wirkt geschützt, zurückhaltend und tief mit seiner Umgebung verbunden.

Natürliche Materialien wie Holz und Lehm bringen Wärme und Tiefe in die Architektur, verbessern das Raumklima und schaffen eine Atmosphäre von Stille, Geborgenheit und Ausgeglichenheit.
Nachhaltigkeit, Materialehrlichkeit und eine klare Formensprache bilden die Grundlage dieses besonderen Wohnkonzepts.

